Продается одноэтажный дом, расположенный в тихой и спокойной деревне всего в 5 км от Тырговиште, на главной дороге в Разград.
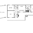
Общая жилая площадь дома составляет 110 кв. м. Он состоит из прихожей, коридора, гостиной, детской комнаты, кухни, еще одного небольшого коридора, ведущего в спальню и туалет с ванной комнатой.
В доме новая электропроводка. Подведена вода. Мебель и электрооборудование включены в цену.
На участке также есть подвал, а также гараж с небольшой хозяйственной постройкой. Размер сада составляет 900 кв. м. В саду очень плодородная почва, подходящая для выращивания овощей или фруктовых деревьев, идеально подходящая для сельского хозяйства.
