Дом расположен в тихой деревне всего в 30 км от города Пловдив и в 5 км от города Первомай.
Общая жилая площадь дома составляет 230 кв. м. Он построен на участке земли площадью 980 кв. м. На участке также есть гараж и дополнительные постройки. Жилой дом в хорошем состоянии. Крыша отремонтирована. Оконные рамы заменены. Построены внутренняя ванная комната и туалет.
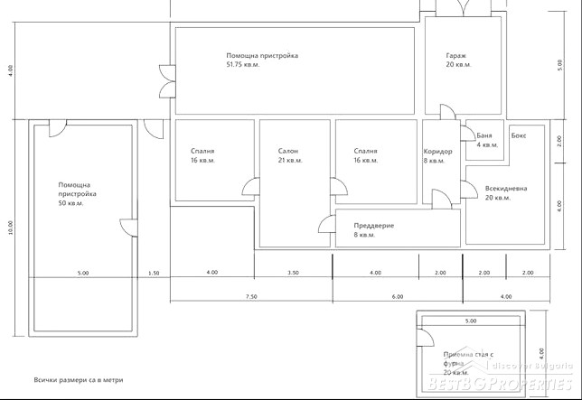
Распределение:
Первый этаж - гостиная, мини-кухня, ванная комната с туалетом, большое подсобное помещение с внутренним соединением с гаражом и подвалом.
Первый этаж - две спальни и гостиная.
Доступ между этажами осуществляется по внутренней лестнице.
Недвижимость предлагает все удобства для комфортного проживания и круглогодичного проживания. Она расположена недалеко от центра деревни. К ней ведет хорошая асфальтированная дорога, что делает ее доступной даже зимой. В центре деревни вы найдете все необходимые в повседневной жизни удобства — ратушу, общественный центр, кафе, ресторан, продуктовый магазин и другие.
