Мы предлагаем вашему вниманию этот большой дом с 5 спальнями, расположенный в курортном городе Банкя.
Недвижимость находится в тихом и спокойном районе, всего в 5 минутах езды на машине от Софийской кольцевой дороги, в 5 минутах ходьбы от магазина Fantastico, Speedy, Econt, магазинов, кафе и ресторанов, в 20 минутах езды на машине от ЦУМа и бульвара Витоша в центре Софии.
В доме есть два парковочных места и небольшой частный двор. Общая жилая площадь составляет 207 кв. м, распределенных на трех этажах. Внутреннее распределение выглядит следующим образом:
На первом этаже находится гостиная с кухней и столовой площадью 45,4 кв. м, лестница, прихожая, туалет и небольшая кладовая.
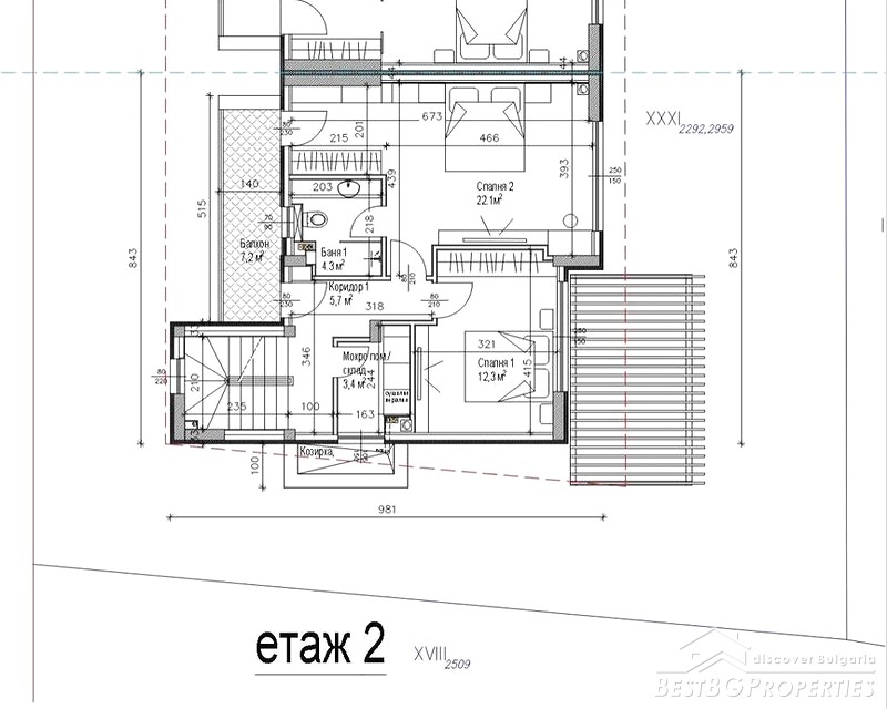
На втором этаже большая хозяйская спальня -18 кв.м., гардеробная - 4 кв.м., ванная комната - 4 кв.м., спальня 2 (можно использовать как кабинет) -12,3 кв.м., мокрая комната -3,4 кв.м. и терраса -7,2 кв.м.
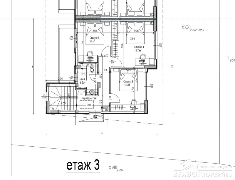
На третьем этаже три спальни и одна ванная комната. Спальня 3 -11,5 кв.м., спальня 4 - 13,7 кв.м. спальня 5 - 10,7 кв.м. Также есть ванная комната - 4,5 кв.м.
Дом выходит на юг, восток и запад. Требуется чистовая отделка. В стоимость включено напольное отопление. Недвижимость снабжена центральным водоснабжением и канализацией. Дом полностью отделен от пристроенного соседнего близнеца, с отдельным входом и двумя парковочными местами.
